Építkezel? Felújítasz? A lakásodat rendezed be?
Ötlettár ikon

Természetes luxus egy kortárs kőházban

 | 

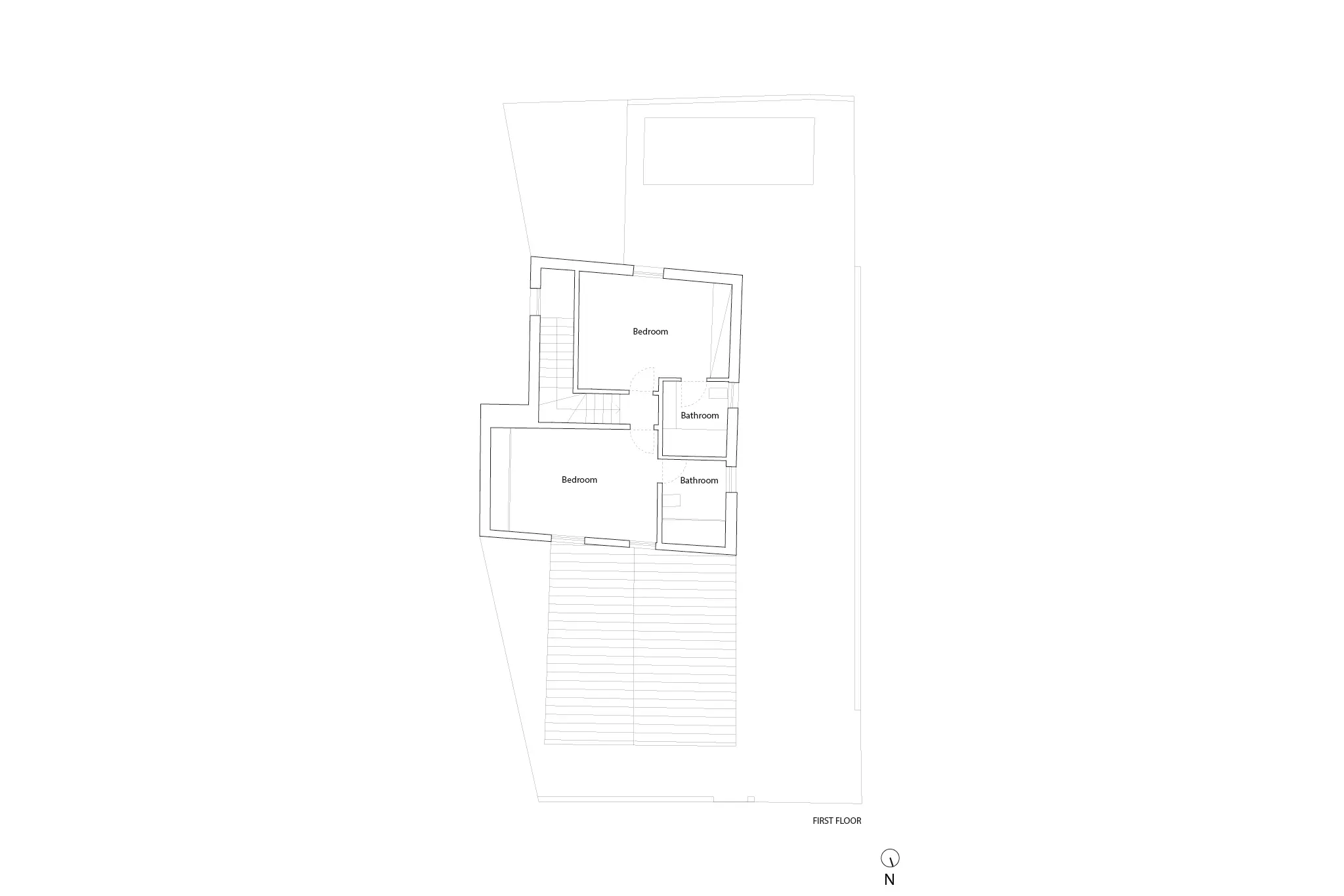
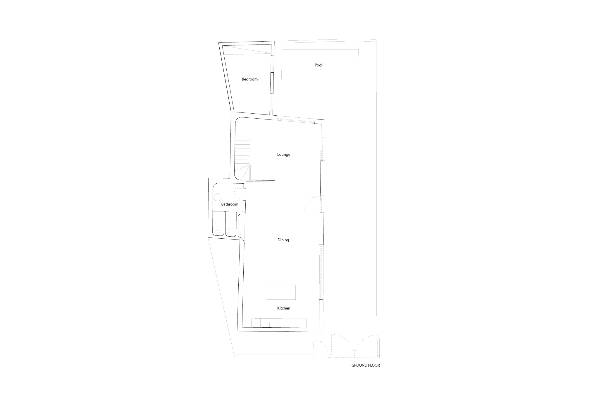
Egy régi, időjárás formálta faajtó mögött rejtőzik ez a modern kőház. Letisztult vonalvezetés, természetközeli anyagok, és egy saját úszómedence jellemzi az itt bemutatott 211 m²-es városi oázist. A természetes kőhomlokzat markáns, mégis organikus megjelenést kölcsönöz az épületnek, amely tökéletesen illeszkedik a mediterrán környezethez. Belépve egy világos, légies nappali fogad, ahol a hatalmas üvegfelületek összemosódnak a kerttel, mintha a természet lenne a belső tér része. A központi helyet elfoglaló lebegő betonlépcső finoman osztja meg a teret, miközben a tölgyfa mennyezetek melegséget és egyensúlyt hoznak az enteriőrbe.

deLOHN Cane Napozóágy

deLOHN Cane Napozóágy

Varázsolj otthonodba egy csodás oázist a Cane kollekció modern, bambuszból készült pihenőjével a teraszon! Ez a kényelmes napozóágy átgondolt, összhangban lévő dizájnjával azonnal trópusi hangulatot varázsol. A szürke ülőfelület poliészter anyagból készült, a váz természetes színű bambuszból, ami mi . . .

131 750 Ft